
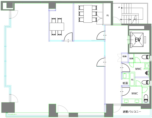
当物件が位置する南池袋は再開発の進む池袋の中心で、豊島区役所の御膝元に位置します。近隣には2016年4月に生まれ変わった南池袋公園があり、都会のオアシスとして多くの人々で賑わっています。豊島区役所と隣接した東京メトロ有楽町線【東池袋駅】までは徒歩2分。JR山手線【池袋駅】までは多くの商業ビルで賑わいを見せるグリーン通りを歩いて徒歩9分とアクセス環境にも恵まれており、集合する8路線を利用すれば、東京・渋谷・新宿・品川等主要都市まで乗り換えなしで向かうことが可能です。2面採光の貸室は、明るく清潔感を感じさせてくれます。更にリニューアルを施し(2020年8月)、天井を高くし開放感のある空間を演出しました。会議室は2室設置しました。トイレ・給湯設備の水回りは、従業員様だけではなく、ご訪問いただく全てのお客様に気持ち良くご使用いただけるよう細部にわたり設備を変更しております。変化を続ける池袋で、事業の可能性を広げては如何でしょうか。是非一度ご内見下さい!
※掲載内容とお引渡し状態が異なる場合は現況を優先させていただきます。
OVERVIEW
- 物件No.
- 2-2898
- 募集期間
- ご成約まで
- 所在地
- 豊島区南池袋
- 最寄駅
-
東京メトロ有楽町線
東池袋駅 徒歩2分
JR山手線
池袋駅 徒歩9分
東京メトロ丸ノ内線
池袋駅 徒歩8分
- 面積
- 49.12坪 / 162.41㎡
- 会議室
- 4名掛け会議室×1
6名掛け会議室×1
- 推奨人数
- 20~30人
- 構造
- S造一部SRC造
- 規模
- 地下1階付8階建
- 施工
- 1990年
- エレベーター
- 1基(11人乗)
- 天井の高さ
- ―
- 空調
- 個別空調
- トイレ
- 専用 男女別 洋式
- 床使用
- OAフロア
- 賃料
- 1,228,000円
- 共益費
- 賃料に含む
- 預託金
- ご相談
- 契約期間
- 2年
- 引き渡し時期
- ご相談
- その他
- 更新料:無/ 償却:無/ 礼金:無/ 契約形態:普通賃貸借契約/ その他:貸主指定の保証会社と保証委託契約を締結していただくことで敷金無で入居することができます。※与信状況によって預託金額が変動する場合がございます。/
現在オンライン内覧が可能です
オンライン内覧について詳しくはこちら
CHECK IT!
この物件についてもっと詳しく
そのまんまオフィス会員
3つのメリット
-
物件の
詳細情報の公開 -
新着物件を
お知らせ -
未公開物件を
ご紹介