
東京メトロ丸ノ内線「四谷三丁目」駅まで徒歩2分という立地にあり、都心へのアクセスが非常に良好です。新宿通り沿いに位置し、周辺には飲食店やカフェ、コンビニが充実しており、ビジネスパーソンにとって便利な環境が整っています。建物は1983年築ながらリノベーションにより現代的で明るい内装が魅力。個別空調や男女別トイレ、機械警備など設備も充実しています。会議室やMTGスペースが造作された状態、セットアップオフィスとしてご入居いただけるため、初期費用や内装工事の手間を大幅に削減できます。敷金は保証会社利用で1ヶ月分と、コスト面でも大きなメリット。退去時の原状回復費用も明朗で、安心してご利用いただけます。サステナブルな設計思想で、企業の成長と環境配慮を両立できるオフィスです。
※掲載内容とお引渡し状況が異なる場合は現況を優先させていただきます。
OVERVIEW
- 物件No.
- 2-3189
- 募集期間
- ご成約まで
- 所在地
- 新宿区四谷
- 最寄駅
-
東京メトロ丸ノ内線
四谷三丁目駅 徒歩2分
東京都交通局新宿線
曙橋駅 徒歩9分
JR中央線・総武線各駅停車
信濃町駅 徒歩12分
- 面積
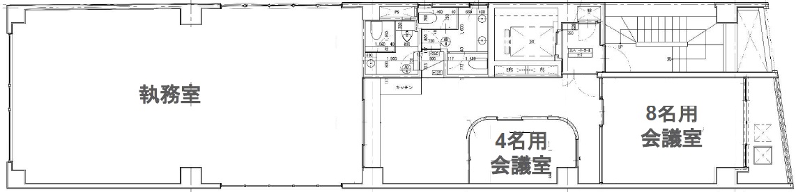
- 45.77坪 / 151.34㎡
- 会議室
- 8名掛け会議室×1
4名掛け会議室×1
- 推奨人数
- 15~18人
- 構造
- SRC造・RC造
- 規模
- 地下1階付7階建
- 施工
- 1983年
- エレベーター
- 1基
- 天井の高さ
- ―
- 空調
- 個別空調
- トイレ
- 専用 男女別 洋式
- 床使用
- OAフロア
- 賃料
- ご相談
- 共益費
- 賃料に含む
- 預託金
- 賃料の1ヶ月分
- 契約期間
- 2年
- 引き渡し時期
- 2026年6月20日予定
- その他
- 更新料:新賃料の1ヶ月分/ 償却:賃料の1ヶ月分/ 礼金:無/ 契約形態:普通賃貸借契約/ その他:契約の際には、貸主指定の保証会社と保証委託契約を締結していただきます。/
現在オンライン内覧が可能です
オンライン内覧について詳しくはこちら
CHECK IT!
この物件についてもっと詳しく
そのまんまオフィス会員
3つのメリット
-

物件の
詳細情報の公開 -

新着物件を
お知らせ -

未公開物件を
ご紹介

















