
渋谷駅徒歩圏内、人気の渋谷アドレスに位置する5階建てビルの最上階オフィスをご紹介します。
窓面が多く、明るく開放的な空間からは、渋谷の街並みを望むことができる眺望が魅力です。
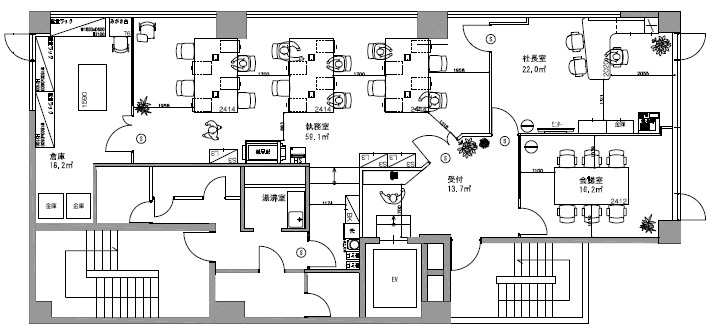
物件の特徴
• 居抜き入居可能:初期費用を抑えて、すぐにビジネスをスタートできます。
• 什器の引渡し相談可:デスクや収納家具など、一部什器の利用もご相談いただけます。
• 洗練された内装:木目調の落ち着いたデザインと、ガラスパネルを活かしたスタイリッシュな空間構成。
室内構成
• 会議室:世界地図が描かれたガラスパネルが印象的な広々空間。
• エントランス・廊下:木目調で統一された高級感あるデザイン。
• オフィススペース:自然光が差し込む明るい空間に、デスク・収納完備。
ビジネスの拠点として、快適かつ機能的な環境をお求めの方におすすめの物件です。
ご内見や詳細については、お気軽にお問い合わせください。
※掲載内容とお引渡し状態が異なる場合は現況を優先させていただきます。
OVERVIEW
- 物件No.
- 2-3678
- 募集期間
- 2026年1月下旬まで
- 所在地
- 渋谷区渋谷
- 最寄駅
-
JR山手線
渋谷駅 徒歩9分
東京メトロ副都心線
渋谷駅 徒歩6分
東京メトロ銀座線
渋谷駅 徒歩7分
- 面積
- 48.51坪 / 160.38㎡
- 会議室
- 6名掛け会議室×1
- 推奨人数
- 12~20人
- 構造
- 鉄筋コンクリート造
- 規模
- 地下1階付5階建
- 施工
- 1993年
- エレベーター
- 1基(11人乗)
- 天井の高さ
- 2,600㎜
- 空調
- 個別空調
- トイレ
- 専用 男女別 洋式
- 床使用
- OAフロア
- 賃料
- 1,139,985円
- 共益費
- 169,785円
- 預託金
- 賃料の12ヶ月分
- 契約期間
- 2年
- 引き渡し時期
- ご相談
- その他
- 更新料:無/ 償却:無/ 礼金:無/ 契約形態:普通賃貸借契約/ その他:SFビルサポート株式会社と保証委託契約を締結していただく場合、預託金額をご相談できます。/
現在オンライン内覧が可能です
オンライン内覧について詳しくはこちら
CHECK IT!
この物件についてもっと詳しく
そのまんまオフィス会員
3つのメリット
-
物件の
詳細情報の公開 -
新着物件を
お知らせ -
未公開物件を
ご紹介