
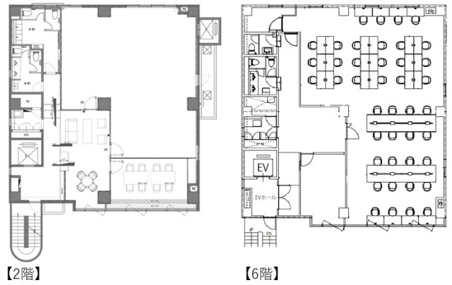
JR山手線【恵比寿駅】徒歩8分。恵比寿駅前の賑やかなエリアを通りすぎると広がる落ち着きある渋谷区東エリアに、2フロアセットでの募集、約120坪のセットアップ・居抜きオフィス(2階:セットアップ、6階:居抜き)が登場いたしました!本物件は2019年にエントランスのリニューアル工事を実施しておりより快適な空間へと生まれ変わっております。2階は、天井は壁を抜いているため最大2,950㎜となっており広々とした執務室となっております。セットアップ内容は、広々とした受付スペース、執務室間仕切り、会議室です。6階は、広々とした受付スペース、執務室間仕切り、会議室となります。執務室内には、合計約76席設置することが可能となっております。保証会社利用により敷金なしでご入居をいただけます。入居に際しての初期費用を抑えその分事業資金へ充当することができ、すぐに業務をスタートしたい企業様におすすめです!気になる方は是非一度ご内見くださいませ。
※掲載写真とお引渡し状態が異なる場合は現況を優先させていただきます。
※掲載写真上段・1~5枚目:2階、掲載写真下段・1~4枚目:6階、掲載写真下段・5枚目:2階
OVERVIEW
- 物件No.
- 2-3689
- 募集期間
- ご成約まで
- 所在地
- 渋谷区東
- 最寄駅
-
東京メトロ日比谷線
恵比寿駅 徒歩7分
JR山手線
恵比寿駅 徒歩8分
東急東横線
代官山駅 徒歩9分
- 面積
- 124.12坪 / 410.31㎡
- 会議室
- 8名掛け会議室×2(各フロア1室ずつ)
- 推奨人数
- 60~76人
- 構造
- 鉄骨鉄筋コンクリート造
- 規模
- 7階建
- 施工
- 1984年
- エレベーター
- 1基(9人乗)
- 天井の高さ
- ―
- 空調
- 個別空調
- トイレ
- 専用 男女別 洋式
- 床使用
- OAフロア
- 賃料
- 3,351,240円
- 共益費
- 賃料に含む
- 預託金
- 無
- 契約期間
- 2年
- 引き渡し時期
- ご相談
- その他
- 再契約料:無/ 償却:無/ 礼金:無/ 契約形態:定期建物賃貸借契約/ その他:契約の際には、貸主指定の保証会社をご利用いただます。※与信状況によって保証金の預託をお願いする場合がございます。/
現在オンライン内覧が可能です
オンライン内覧について詳しくはこちら
CHECK IT!
この物件についてもっと詳しく
そのまんまオフィス会員
3つのメリット
-
物件の
詳細情報の公開 -
新着物件を
お知らせ -
未公開物件を
ご紹介