
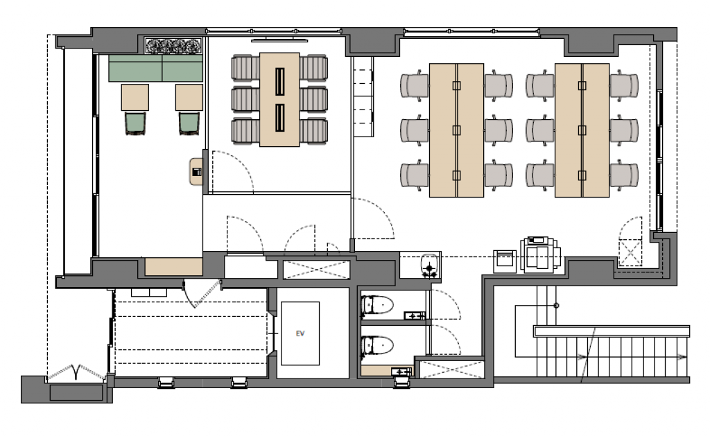
千代田区に1階セットアップオフィスが登場です!エレベーターホールと別に設けられた専用入口から入ると、ラウンジとしても利用可能な受付スペースが来客者を迎えます。6名用会議室には椅子・デスクに加えモニターも備え付けとなっております!室内は12名用の椅子・デスクが設置済みで事業開始にあたっての準備期間を大幅に短縮することが可能です!トイレも男女別に設けられており、従業員の皆様の満足度もきっと向上するオフィスです!是非ともご検討くださいませ。
※掲載写真はイメージCGとなります。リニューアル内容等に変更が生じる場合がございます。
※掲載写真はイメージCGとなります。リニューアル内容等に変更が生じる場合がございます。
OVERVIEW
- 物件No.
- 2-3692
- 募集期間
- ご成約まで
- 所在地
- 千代田区岩本町
- 最寄駅
-
東京メトロ日比谷線
小伝馬町駅 徒歩3分
東京都交通局新宿線
岩本町駅 徒歩5分
JR総武線快速
馬喰町駅 徒歩5分
- 面積
- 24.37坪 / 80.6㎡
- 会議室
- 6名掛け会議室×1
- 推奨人数
- 10~12人
- 構造
- 鉄骨造
- 規模
- 6階建
- 施工
- 1990年
- エレベーター
- 1基
- 天井の高さ
- ー
- 空調
- 個別空調
- トイレ
- 専用 男女別 洋式
- 床使用
- OAフロア
- 賃料
- 657,990円
- 共益費
- 賃料に含む
- 預託金
- 無
- 契約期間
- 2年
- 引き渡し時期
- 2025年12月中旬予定
- その他
- 更新料:無/ 償却:無/ 礼金:無/ 契約形態:普通賃貸借契約/ その他:契約の際には、貸主指定の保証会社と保証委託契約を締結していただきます。/
現在オンライン内覧が可能です
オンライン内覧について詳しくはこちら
CHECK IT!
この物件についてもっと詳しく
そのまんまオフィス会員
3つのメリット
-

物件の
詳細情報の公開 -

新着物件を
お知らせ -

未公開物件を
ご紹介












