
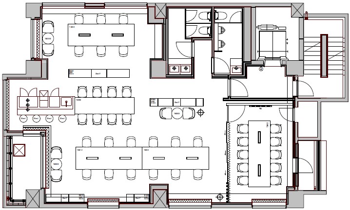
「本の街」神保町エリアに、2025年12月竣工予定の新築セットアップオフィスが誕生!都営新宿線【小川町駅】・東京メトロ千代田線【新御茶ノ水駅】から徒歩6分、東京メトロ半蔵門線・都営三田線【神保町駅】から徒歩7分と、複数路線が利用可能な交通アクセスに優れた立地です。1階には入居者限定のシェアラウンジがあり、来客対応に便利な会議室も併設されています(※1)。8階にはルーフトップスペースを設けており、業務の合間にリフレッシュできる環境も整っています。貸室には10名用の会議室什器を造作済みで、執務室内にも什器を設置しており、18~26名の利用を推奨しています。「オフィス=リビング」をコンセプトに、ナチュラルな家具や間接照明を積極的に取り入れ、自宅のリビングのような温かみのある空間を演出します。さらに原状回復義務なし(※2)で、退去時のコストを抑えられる点も魅力です。ご案内可能ですので、ぜひお気軽にお問い合わせください!
※掲載内容に関して、リニューアル工事に伴い内容に変更が発生する場合がございます。お引渡し状態は現況を優先させていただきます。
※1:1階シェアラウンジは貸切利用・会議室利用ともに要予約
※2:現状変更や破損等を除く。契約時に別途クリーニング費用が発生します。
OVERVIEW
- 物件No.
- 2-3705
- 募集期間
- ご成約まで
- 所在地
- 千代田区神田錦町
- 最寄駅
-
東京都交通局新宿線
小川町駅 徒歩6分
東京メトロ千代田線
新御茶ノ水駅 徒歩6分
東京メトロ半蔵門線
神保町駅 徒歩7分
- 面積
- 42.99坪 / 142.11㎡
- 会議室
- 10名掛け会議室×1
- 推奨人数
- 18~26人
- 構造
- 鉄筋コンクリート造
- 規模
- 8階建
- 施工
- 2025年
- エレベーター
- 1基(11人乗)
- 天井の高さ
- 3,000mm
- 空調
- 個別空調
- トイレ
- あり 男女別 洋式
- 床使用
- OAフロア
- 賃料
- 1,418,670円
- 共益費
- 賃料に含む
- 預託金
- 賃料の2ヶ月分
- 契約期間
- 2年
- 引き渡し時期
- 2026年1月予定
- その他
- 更新料:無/ 償却:無/ 礼金:無/ 契約形態:普通賃貸借契約/ その他:原状回復義務なし(現状変更した場合や破損等を除く)/クリーニング費用をご負担いただきます。(契約時)/貸主指定の保証会社と保証委託契約を締結していただきます。/
現在オンライン内覧が可能です
オンライン内覧について詳しくはこちら
CHECK IT!
この物件についてもっと詳しく
そのまんまオフィス会員
3つのメリット
-

物件の
詳細情報の公開 -

新着物件を
お知らせ -

未公開物件を
ご紹介












