都営新宿線【市ヶ谷駅】徒歩5分に新たに内装付きの物件が誕生いたしました!靖国通り近くに位置している当物件ですが、周辺の喧騒と一線を画した閑静な環境が整っているため、穏やかに業務へ集中することができます。周辺に靖国神社や北の丸公園等、都心では珍しい、緑豊かでリラックスできる場所があるのも本物件の魅力となります。貸室内には会議室が1室用意されているため、入居時の費用を減らしたうえで、工事の期間も減らしスムーズに入居が可能となります。また、2016年にエントランス・EVホールを貸室とともにリニューアルしております。そのため、ビル全体として綺麗で清潔感のある仕様となりますので、是非ご検討いただければと存じます!
※掲載内容とお引渡し状態が異なる場合は現況を優先させていただきます。
OVERVIEW
- 物件No.
- 1-638
- 募集期間
- ご成約まで
- 所在地
- 千代田区九段南
- 最寄駅
-
東京都交通局新宿線
市ヶ谷駅 徒歩5分
東京メトロ半蔵門線
半蔵門駅 徒歩10分
東京メトロ東西線
九段下駅 徒歩11分
- 面積
- 18.88坪 / 62.41㎡
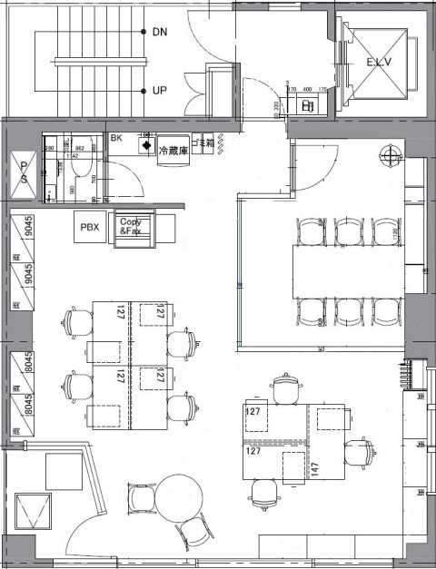
- 会議室
- 6名掛け会議室×1
- 推奨人数
- 8~9人
- 構造
- 鉄筋コンクリート造
- 規模
- 地下1階付6階建
- 施工
- 1990年
- エレベーター
- 1基(6人乗)
- 天井の高さ
- ー
- 空調
- 個別空調
- トイレ
- 専用 男女共用 洋式
- 床使用
- OAフロア(H=50mm)
- 賃料
- 358,720円
- 共益費
- 賃料に含む
- 預託金
- 賃料の6ヶ月分
- 契約期間
- 2年
- 引き渡し時期
- 2026年4月1日予定
- その他
- 更新料:新賃料の1ヶ月分/ 償却:無/ 礼金:無/ 契約形態:普通賃貸借契約/ その他:契約の際には、SFビルサポート株式会社と保証委託契約を締結していただきます。※与信状況によって預託金額が変動する場合がございます。/
現在オンライン内覧が可能です
オンライン内覧について詳しくはこちら
CHECK IT!
この物件についてもっと詳しく
そのまんまオフィス会員
3つのメリット
-

物件の
詳細情報の公開 -

新着物件を
お知らせ -

未公開物件を
ご紹介
















